En su plan de visitas anual, el equipo de CES incluyó el primer edificio certificado de la Pontificia Universidad Católica de Chile, ubicado en la rivera del lago Villarica.

El pasado 22 de abril, Romy Luckeheide, arquitecto de CES, visitó en Villarrica el primer edificio certificado CES de la Pontificia Universidad Católica de Chile.
Con un puntaje de 30 puntos, el edificio fue certificado en noviembre de 2020. Éste consta de más de 1.000 m2 construidos, está ubicado en la rivera del lago Villarrica frente a la casa de estudios superiores la sede UC Villarrica. Contempla salas de clases, espacios comunitarios, cafetería, espacios de trabajo, oficinas, salas de reuniones y auditorio. El programa educacional involucra Mayor y Minor en Desarrollo Sustentable, programas de intercambio, cursos y diplomados.
Al exterior se encuentra el Museo Interactivo Regional de Agroecología y Sustentabilidad MIRAS, gratuito, libre o guiado con acceso universal, que cuenta con una huerta comunitaria. Es un espacio abierto a la comunidad y tiene acceso a la playa.
“El diseño puso sus esfuerzos por obtener la mayor cantidad de puntaje en las categorías de Calidad del Ambiente Interior a través de estrategias pasivas como activas, en Energía disminuyendo la demanda energética del edificio y Agua con el fin de disminuir el consumo de agua potable durante la operación”, comenta Romy Luckeheide.
Las estrategias en las que trabajó el edificio para mejorar tanto su eficiencia como confort interior están relacionadas al programa de uso. Así, “se maximiza la iluminación natural, logrando una iluminación óptima para el 90% de los recintos regularmente ocupados, y se prioriza la visibilidad hacia el exterior. Se cumple con los requerimientos acústicos de aislación de fachada. En el interior del edificio también existen propuestas que mejoran la calidad acústica, como el control de ruido proveniente de los equipos y un sistema implementado en el cielo que absorbe el sonido y reduce el nivel de ruido generado por la reverberación”, cuenta la arquitecta.
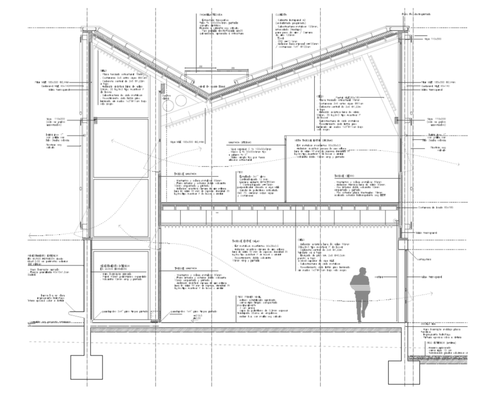
Asimismo, en la categoría Energía se implementó como estrategia una envolvente aislada con vidrios de termopanel. En la cubierta se utilizó lana mineral y de vidrio; en los muros de hormigón: aislación interior con poliestireno expandido y en los muros de madera se consideró lana de vidrio. Como explica la profesional de CES, “estos elementos ayudan tanto a la aislación térmica como a la acústica. Todos los accesos tienen doble puerta lo que ayuda mucho a controlar la entrada de aire frío al interior cada vez que se utilice”, relata.

De esta manera, esta solución constructiva permitió que el proyecto cumpliera por sobre los rangos obligatorios del requerimiento y obtuviera, además, un 20,8% de disminución de la demanda energética anual en climatización e iluminación.
Indicadores




Equipo
Arquitecto: Labbe Portugueis Arquitectos
Asesor: José Espinoza
Entidad Evaluadora: ECOSUSTENTA















